
Cégvezetők és befektetők figyelem!
Prémium kivitelezésű iroda és raktárcsarnok Gödöllő Ipari Parkban. Azonnal birtokba vehető ingatlan, kivitelezői garanciával.
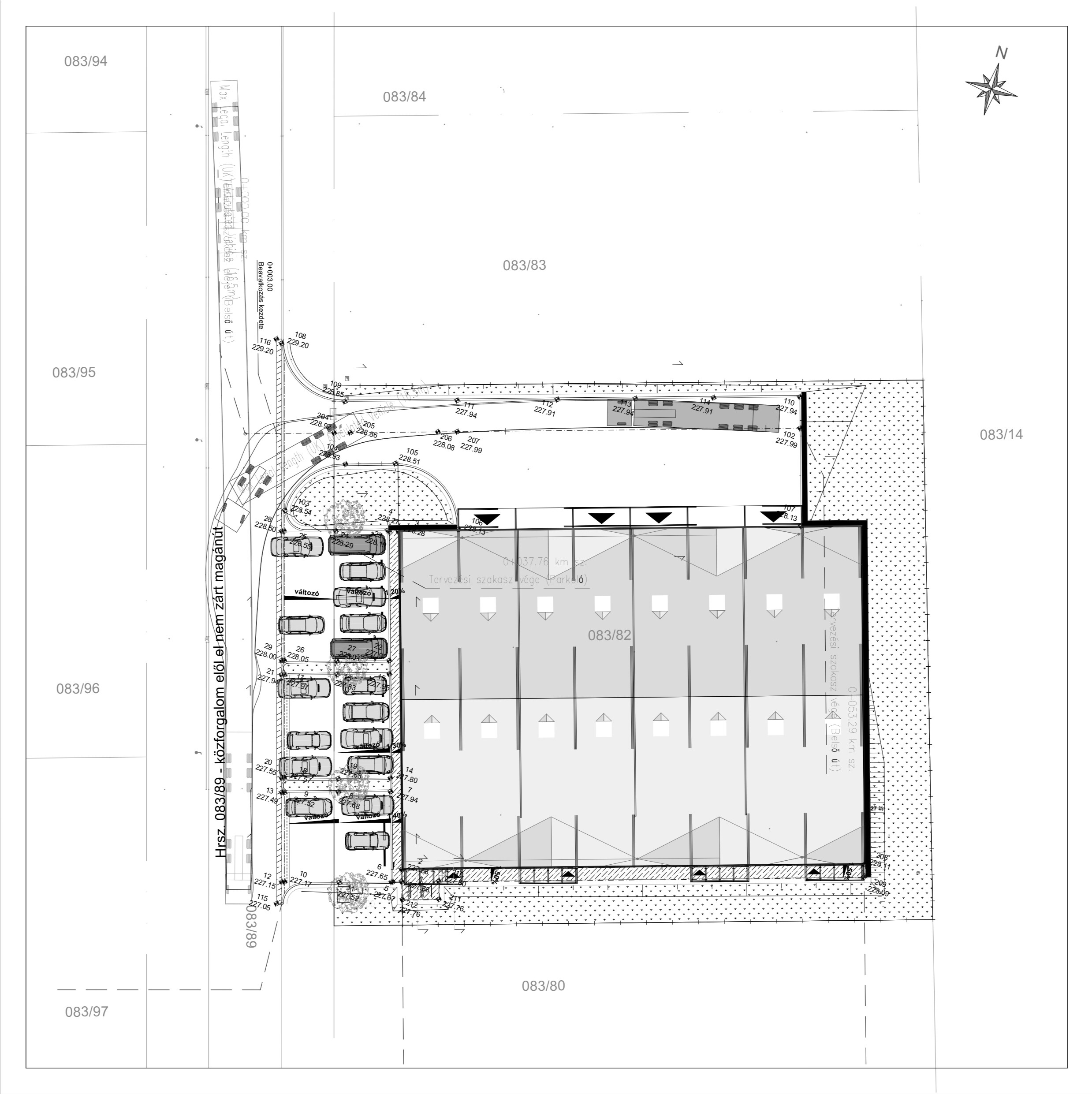
A Gödöllő, Zsélyi Aladár u. 11. szám alatt található ipari ingatlan egy gyorsan megtérülő befektetés, mely 80-100%-kal magasabb havi bevételt érhet el, mint egy azonos értékű lakóingatlan. Mindezt modern kivitelben, magas műszaki tartalommal és kivitelezői garanciával kínáljuk.
Ugyanakkora tőke.
Teljesen eltérő bevételi potenciál.

Lakáskiadás - Pest megye
Befektetett tőke: nettó 173 millió Ft
Lokáció: Pest megye / Budapest agglomeráció
Típus: 3 szobás, újépítésű lakás
Havi bérleti díj: 380 000 Ft
Éves hozam: ~4,56 M Ft
5 év alatt: ~22.8-30 M Ft
Ipari csarnok kiadás - Gödöllő
Befektetett tőke: nettó 187 millió Ft
Raktár: 300 × 7 € = 2 100 €
Iroda: 100 × 10,75 € = 1 075 €
Havi bérleti díj: 3 175 € ≈ 1 270 000 Ft / hó
Éves hozam: ~15,24 M Ft
5 év alatt: ~76,2 M Ft
Cégünk, a Wrecker Kft. évtizedes szereplője a magyar építőiparnak. Nagy tapasztalattal
rendelkezünk ipari csarnokok, irodák tervezésében és kivitelezésében. Beruházásaink műszaki
tartalma és minősége ezt a tapasztalati tőkét tükrözi.
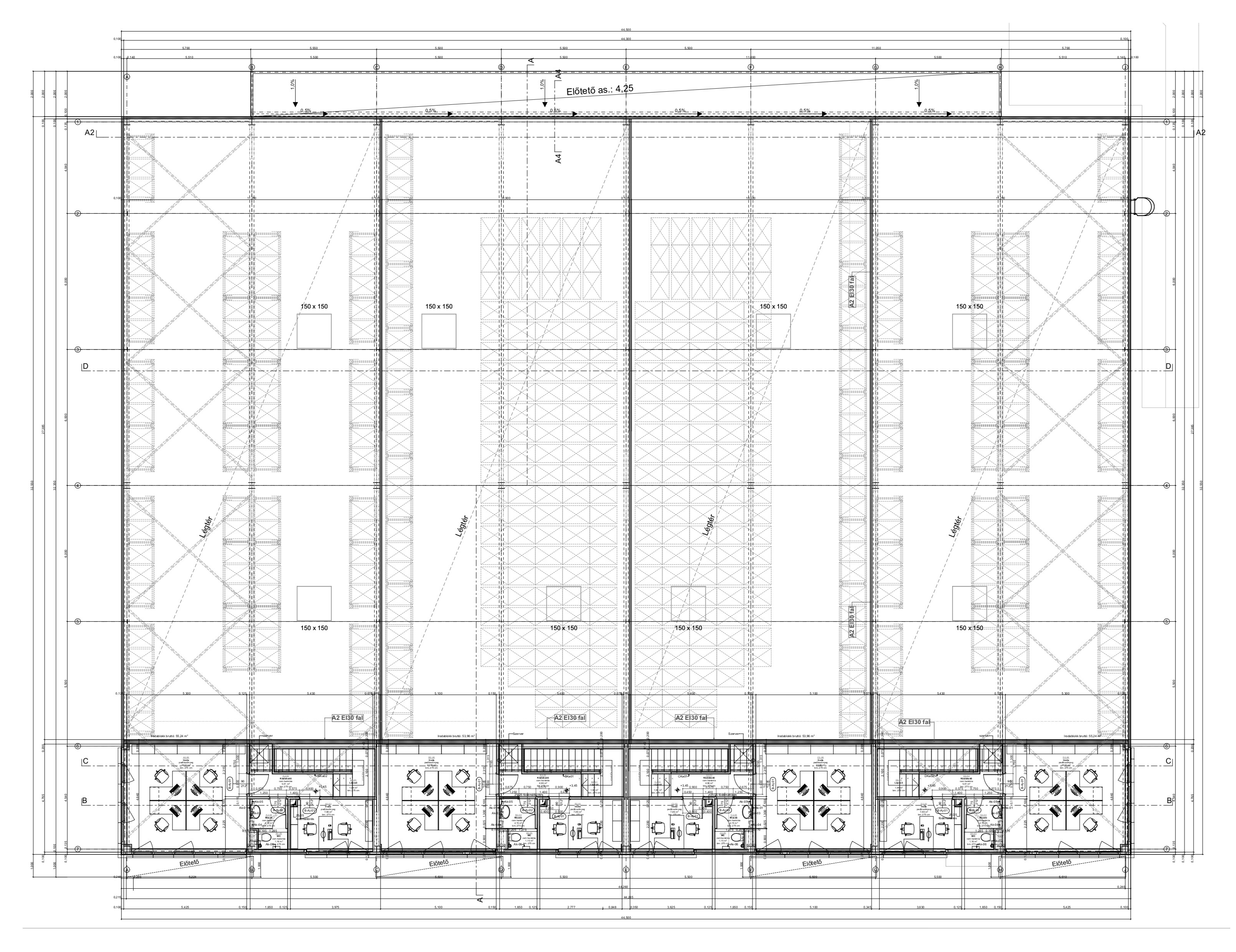
Az ingatlan teljesen felszerelt, azonnal birtokbavehető.
A csarnok ügyvédi megosztással rendelkező osztatlan közös tulajdon, négy különálló egységet tartalmaz.
Jogilag rendezett, hitelképes, per- és tehermentes.
Már csak 1 elérhető!


















































































